幕墙PRO:小鹏汽车新总部大楼
日期:2025-12-04



幕墙PRO」,寓意Profession(专业)、Progress(进步),每年甄选具有先锋理念、节能特性和创新价值的建筑表皮项目进行分享与展示,推动新设计、新技术与新材料的应用,助力青年幕墙设计师成长,为建筑外立面的创作边界提供更多可能。

2026年「幕墙PRO」从低碳设计、降本增效、大型公建、出海实践 四大方向深度分享年度幕墙项目。



在新能源与智能科技深度融合的时代浪潮中,建筑不仅是功能的载体,更成为品牌战略与技术理念的视觉表达。

广州小鹏汽车总部(小鹏科技园)选址天河智慧城岑村片区,以 36 万㎡的宏大规模与 6.8 万㎡的园区体量,构筑起集办公、研发、展示于一体的科技地标。其独特的流线型外观与多元创新的幕墙系统,既焕新了城市天际线,更成为建筑幕墙行业 “功能适配 + 美学表达 + 绿色低碳” 的典范之作。



新能源科技地标

幕墙基底


小鹏科技园以 “新能源 + 智能科技” 为核心定位,四大功能楼宇各司其职: 

1号楼承载小鹏与汇天的核心办公;

2号楼集成办公区、销售展厅及企业展厅;

3号楼专设会议活动区;

4号楼则聚焦自动驾驶与AI大模型研发。

建筑整体的现代感与未来感,既源于流线型的形态设计,更得益于幕墙系统与建筑功能的深度绑定。



多元结构

构建科技建筑表皮


项目幕墙系统以“适配不同功能场景”为核心逻辑,构建起涵盖 14 类细分系统的完整体系,实现了功能需求与建筑美学的高度统一。


幕墙系统主要包括:

· 竖明横隐框架玻璃幕墙(铝包钢/铝合金立柱);

· 横明竖隐框架玻璃幕墙 + 横向层间装饰铝板;

· 中庭玻璃幕墙 + 穿孔铝板幕墙系统;

· 拉索玻璃幕墙采光顶 + 玻璃栏板系统;

· 主入口全玻璃系统、铝板雨棚、立面格栅等。

幕墙总面积约7万平方米,造价约1.8亿元,展现出在材料、结构与视觉表达上的综合把控能力。



核心材料

性能与美学的双重突破



半钢化夹层玻璃:平整度的四重保障


项目采用半钢化夹层玻璃作为幕墙主要材料,其在平整度方面的表现尤为出色:

· 减少钢化变形:半钢化工艺风压较低,有效控制弓形与波形变形;

· 增强结构稳定:PVB/SGP中间膜提升整体刚度,分散外力影响;

· 缓解温差变形:外片夹层结构减轻中空层气体压力变化导致的“凸凹肚”现象;

· 优化安装平整度:中间膜缓冲作用降低安装过程中的局部应力变形。

这些特性使夹层玻璃尤其适用于对平整度要求极高的大面积幕墙应用。


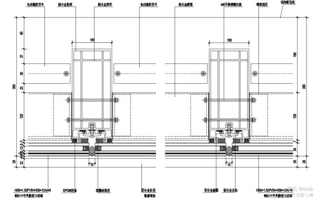
▲玻璃幕墙标准单元大样+节点



穿孔铝板幕墙:

功能与美学的平衡艺术


穿孔铝板幕墙在项目中扮演了重要角色,具备以下特点:

· 装饰性强:通过孔径、排列与图案变化,营造朦胧、通透或立体视觉效果;

· 功能整合:平衡遮阳与采光,促进自然通风,兼具降噪性能;

· 结构轻巧:铝材自重轻,便于安装与维护;

· 耐久环保:耐腐蚀、防火防潮,可回收利用,契合绿色建筑理念;

· 施工便捷:工厂预制板材,现场安装速度快,且连接方式多样(如螺栓、铆接);

· 环保可持续:部分穿孔铝板可100%回收再利用,降低建筑全生命周期的环境影响。


▲外层穿孔板



光伏一体化屋面:

绿色能源的建筑表达


项目屋顶采用的硫化镉光伏发电铝板。超过3000平方米的仿金属质感光伏组件,通过创新彩色显色技术,实现了色彩协调与金属光泽的视觉统一。

这不仅使建筑在美学上更具科技感与未来性,更实现了绿色能源的高效转化,是建筑与能源系统深度融合的典范。


▲屋面光伏部位



项目信息:

建筑面积:36万㎡

幕墙面积: 约7万㎡

幕墙造价说明: 约1.8亿

建筑设计单位:唯可建筑设计咨询(北京)有限公司、深圳市华阳国际工程设计股份有限公司

业主:广州小鹏汽车科技有限公司

项目幕墙顾问:华纳工程咨询(北京)有限公司

幕墙设计/施工: 中国建筑一局(集团)有限公司




3月11-13日 | 广州

现场听创新幕墙项目


主题

低碳设计 · 价值提升

全类型项目建筑表皮绿色发展


时间地点

2026年3月11日 | 广州



【WINDOOR第32届门窗幕墙新产品博览会】正式定档于2026年3月11-13日广州,聚焦门窗幕墙全产业链新设计、新产品、新材料与新技术,系统呈现建筑外表皮前沿解决方案。

同期举办【阿尔法建筑大会】每年邀请全球业主、建筑师、幕墙设计与施工单位、门窗行业领军人物,围绕热门趋势和专业议题展开深度分享。通过国际视角和多元展区,助力行业在全球语境下持续发展。














「WINDOOR门窗幕墙新产品博览会」每年3月于广州举办,专注发布门窗幕墙全产业链新设计、新产品、新材料、新技术,是涵盖建筑外表皮领域解决方案的大型展览,同期举办阿尔法建筑大会,邀请全球甲方、建筑师、幕墙设计师、门窗行业领军人物分享热门专业议题。




关键词:幕墙,幕墙项目,建筑外立面,幕墙设计,幕墙施工,幕墙材料
上一篇:幕墙PRO:香港启德地王AIRSIDE
下一篇:精彩待续……
@ 2025 WINDO0R. All rights reserved.
粤ICP备18062804号 | 粤公网安备44010502000918号
[隐私政策] | [EN]
参展相关
参观相关