张江科学之门双子塔 | 智慧、科技、灵动建筑外立面
日期:2024-04-22

城博门窗幕墙新产品博览会 2024-04-11 16:01 


【幕墙PRO】寓意PROFESSION(专业)、PROGRESS(进步),每年甄选全国优质创新幕墙工程,分享新技术、新材料,推动建筑表皮多样化实践与发展,助力青年幕墙设计师成长。



本期嘉宾


龚红武

ALT艾勒泰建筑工程咨询(上海)有限公司

董事、总工程

“设计外立面既好看室内又实用的建筑,本身就是个没有标准答案的问题。”



本期项目


张江科学之门双子塔

图片

智慧、科技、灵动



项目地点:上海 • 张江科学城

建筑事务所:Gensler

建筑高度:320m

建设单位:东塔——张江高科+张江集团、西塔——陆家嘴集团



这个项目是张江科学城作为国家科学中心和上海科创中心定位的核心载体,这也决定了项目的设计及品质需要达到一定的高度。


项目建筑外立面的寓意是智慧、科技和灵动,契合了张江这个地方的特色。


建筑形体四个立面的生成逻辑是一样。但在东西立面上,幕墙体系的一些变化,所以看起来会有所差异。

▲ 东西立面效果图

▲ 南北立面效果图



幕墙系统设计方向研究

图片

平板玻璃错层叠加


刚拿到项目效果图和形体模型时,我其实并不像以往做其他超高层项目那么淡定,主要是因为这个建筑形体的生成逻辑有点与众不同,并不像其他超高层建筑的形体看起来一目了然。


我们通过分析整个形体模型,提出两种解决方案:


方案1:冷弯 + 弯弧玻璃

采用弧形玻璃拟合空间的多维曲面,板块竖向连续。

系统特点:表皮细节平顺、流畅,但幕墙板块的空间定位复杂,并存在翘曲(四点不共面)。


技术限制:玻璃Low-e膜需为“可钢”膜系,弯弧玻璃与平板玻璃可能存在一定色差。


© ALT


方案2:平板玻璃错层叠加

采用平板玻璃错层叠加的方式拟合成空间的多维曲面,板块竖向错缝,层间阶梯变化,板块与地坪垂直。


系统特点:1.将空间几何构造转化为平面几何;2.对玻璃镀膜技术没有限制;3.板块全部垂直,室内空间划分更灵活,室内窗帘设计与幕墙更贴合;4.表皮细节的顺滑度稍显不足。


© ALT


方案1 VS 方案2


从草渲的效果来看,方案1的表皮非常流畅,方案2在中段区域,错层叠加的阶梯比较大。


▲ 方案1

▲ 方案2


再从室内视角看,方案1的幕墙立柱不仅是向外或向内倒,在幕墙平面内也都是歪的,导致室内景观体验不佳。方案2所有板块垂直,室内空间划分更灵活,与分户墙的交接很好处理。

▲ 方案1

▲  方案2 


加上窗帘后,方案1的缺点被放得更大了,因为幕墙立柱是倾斜的,窗帘与幕墙无法贴合。方案2室内窗帘、吊顶与幕墙更贴合,可一体设计,更具经济价值且用户体验更好。

▲ 方案1

▲  方案2


经过全方位、多角度、多维度的对比,业主最终选择方案2。该方案立面效果与“智慧”、“科技”、“灵动”的设计理念更呼应,幕墙板块从塔楼自下而上,从有序排列到无序,最后回归到有序,而建筑室内舒适度与经济价值更优。


以上两种方案,在超高层建筑领域都属于常见的技术解决方案。只不过,对这个项目来说,方案2更适用。设计外立面既好看室内又实用的建筑,本身就是个没有标准答案的问题。



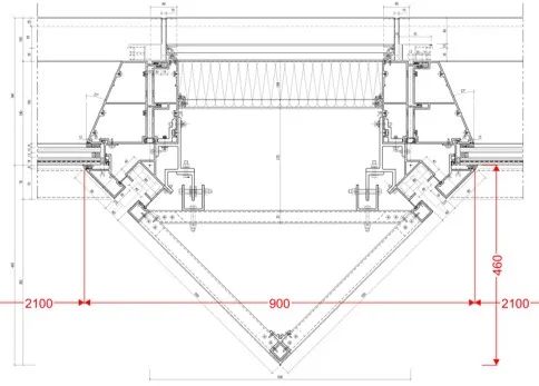
幕墙系统构造研究

图片

“激活” 12,000块幕墙单元的转接件


我们经过模型数据分析,发现板块错层的阶梯变化范围非常大,从悬挑312mm到内退176mm,从而带来了三个技术难点:


难点1:一个单元板块上同时存在“悬挑”和“退台”两种工况;


难点2:如何在确保结构安全的前提下,让所有单元板块“轻松”、“自由”地进行空间转换?


难点3:如何确保错层叠加幕墙系统的防水和热工性能?


© ALT


解决方案:错层叠加单元板块的转换与安装


从不同视角的现场照片可以看出,幕墙板块层间的转换非常轻盈,尺度非常小。

© ALT


这个系统的核心部件是创新设计的转接件,该设计可以说是大繁似简,成功“激活”了 12,000块幕墙单元,确保可以“自由”、“灵动”地排列。 

© ALT


▲ 5种不同状态的板块叠加工况,从正面看板块所有的正投影效果一样

© ALT


我们选择使用了一种五维可调的单元幕墙支座系统,是幕墙的“后勤保障措施”,适应全楼所有工况,确保安装精度。这也是一个设计创新点。

© ALT



幕墙装饰线条的研究

图片

玻璃幕墙和金属线条搭配设计


通体的玻璃幕墙,观感相对偏暗,稍显沉闷。金属装饰线条有较好的受光性,能提亮建筑,还能作为泛光照明的载体。玻璃幕墙和金属线条搭配设计,虚实结合,不仅能丰富建筑立面的肌理,还可降低建筑能耗。


装饰线条的形式和尺寸,需结合建筑高度、建筑形体、幕墙模数、地域条件等因素综合考虑。考虑地域条件,在北方地区下雪或冻雨非常频繁的地区,不适合做大尺寸的横向装饰条。


案例 | 深圳平安金融中心(599m)

• 连续的竖向不锈钢线条;

• 板块竖向连续、等宽;

• 标准模数3000mm,线条宽度900mm。


© ALT




案例 | 北京•中国尊(528m)

• 连续的竖向铝合金线条;

• 板块竖向连续,宽度等比例缩放; 

• 大线条宽度400~900m渐变,小线条宽度155mm。


© ALT




案例 | 上海环球金融中心(492m)

• 横向铝合金线条

• 线条出挑深度200mm

• 板块竖向连续、等宽


© ALT



张江科学之门双子塔

建筑师原先设计的是经典的子弹头造型,但做了VMU后发现效果并不理想。经过分析后,发现这个项目的幕墙装饰条并不是像常规项目的装饰条那样平行排列的。


子弹头造型侧面有很好的受光性,但前端安装灯具后,前端正视的受光性会受到很大的影响。不同角度的装饰条排在一起时,展现不出预期的效果。


最后,大家经过多轮的研究,做了一个比较圆润的装饰条造型,不同角度的受光性都非常好。

▲典型幕墙线条©ALT


▲立面特征线条©ALT


在东西立面两种不同体系的幕墙的交界处,做了一米宽的阳极氧化铝板装饰条,这对于提亮建筑效果的作用非常显著。







「WINDOOR门窗幕墙新产品博览会」每年3月于广州举办,专注发布门窗幕墙全产业链(包含系统门窗幕墙材料型材隔热防火门窗门窗设备门窗五金结构胶新设计、新产品、新材料、新技术,是涵盖建筑外表皮领域解决方案的10万+㎡大型展览,同期举办阿尔法建筑大会,邀请全球200+甲方、建筑师、幕墙设计师、门窗行业领军人物分享热门专业议题。





关键词:幕墙设计,幕墙工程,建筑外立面
@ 2025 WINDO0R. All rights reserved.
粤ICP备18062804号 | 粤公网安备44010502000918号
[隐私政策] | [EN]
参展相关
参观相关