【门窗展】双层通风玻璃幕墙大起底!最详细的双层幕墙系统知识都在这里
日期:2018-06-06

        【门窗展】双层幕墙简介

        能耗是幕墙自诞生以来就一直面对的问题,只不过早期人们未给予应有的重视罢了。从幕墙的发展来看,为提高墙体的热工性能,玻璃幕墙从单层玻璃、非隔热型材的单层幕墙逐渐向中空玻璃、断桥隔热型材幕墙以及双层通风幕墙发展。同时,为了减少光污染,大面积的高反射率镀膜玻璃应用量在减少,高透明度的中空玻璃应用量在增加。

        双层通风幕墙又常被称为双层幕墙呼吸式幕墙动态通风幕墙热通道幕墙等等。双层通风玻璃幕墙简单地说就是两层玻璃幕墙加上中间空气层,通过系统构造的优化设计和合理配置,双层幕墙可有效提高围护系统的热工性能,改善室内通风,提高隔声性能,控制室内采光。

        根据构造特点及通风原理,双层幕墙可分为外循环式(自然通风型)、内循环式(机械通风型)、内外循环式(混合通风型)以及密闭式、开放式等多种形式。 

        双层幕墙同样可以集成光伏幕墙的概念形成双层光电幕墙,也可以与各种夜景照明系统更好地结合。


内循环式(机械通风型)、外循环式(自然通风型)通风换气示意图

        双层幕墙系统是于20世纪末在欧美诸国流行开来的,最早可以追溯至1980年由美国HOK建筑事务所设计的美国尼亚加拉大瀑布的欧美化工中心大楼。国内随着经济的发展和节能意识的提升,双层幕墙在一些高标准的写字楼、公寓等建筑中出现的越来越多。尽管目标都是类似的,然而不同的建筑师在不同地区、不同建筑中采用的形式千差万别。


双层幕墙的优点


        与传统单层玻璃幕墙墙体相比,双层通风幕墙的优点是不言而喻的,通过合理的设计,在保持建筑透明性的同时提高了墙体的保温隔热性能,节约了运营的能耗。虽然传热系数仍高于传统墙体,但它可以主动地调节建筑外墙附近的小气候以达到一定程度的节能效果。 

        节能:双层幕墙与单层幕墙相比,围护结构采暖时可以节约能源42%~52%,制冷时可以节约能源38%~60%。

(表格数据来源于北京江河幕墙股份有限公司黄拥军总工程师的演讲文稿)


        内表面与室内温差小:(某个测试条件下)单层幕墙内表面与室内空气温差约为14oC,热辐射会导致人不舒适;双层幕墙内表面与室内空气温差仅为4oC,满足热舒适性指标。

        隔声:(某个测试条件下)采用6mm厚玻璃的单层幕墙,开启扇关闭时隔声量约为30dB,但当开启扇打开时,其隔声能力很差,隔声量仅为10dB;采用双层幕墙,风口和开启扇关闭时隔声量可达到60dB,且在开启外层幕墙风口和内层幕墙开启扇时,仍有较高的隔声能力,其隔声量可达到30dB。这个优点说明双层幕墙更为适合受噪音(如交通要道旁)影响较大的建筑。(数据来源于北京江河幕墙股份有限公司黄拥军总工程师的演讲文稿)

        调节光线:双层幕墙中的遮阳白页(或其它遮阳系统)可通过智能或人工控制、调节光线的入射量、入射方向,满足内部环境需要。

        提供适当的自然通风:普通单层幕墙在风力达到四级时,就必须关闭开启扇,且下雨时不能进行自然通风,受环境的影响大;

        保护层:双层幕墙的外层幕墙及热通道对风雨、风沙等具有缓冲作用,在刮风、下雨、沙尘暴等天气恶劣的条件下,仍可实现一定程度的自然通风换气。



外循环式(自然通风型)双层幕墙系统

        外循环式(自然通风型)双层幕墙由外层幕墙、内层幕墙、内外层之间的空气腔、内外层之间的连接装置、遮阳装置、外层进出风口及其控制装置等组成。

        外循环式双层幕墙的外层一般采用单层玻璃幕墙,内层采用中空玻璃+断桥隔热型材,二层玻璃幕墙中间一般有200~600mm的空间,其空气腔可与室外空气连通。通过对气流的合理组织和控制,利用建筑高度的烟囱效应和热压原理,使两层幕墙之间的空气流动,形成不用电能的动态通风,实现建筑节能。



外循环式(自然通风型)双层幕墙通风及气流组织原理

(图片来源于沈阳远大铝业工程有限公司)

        通过控制进出风口的开合,调节幕墙性能。

        冬季:关闭通风口,尽量减少换气次数(热交换),利用幕墙间的太阳辐射热量。

        夏季:开启通风口,提高换气次数,避免室外的热量传入室内,提高系统的隔热性能。

        舒适季节:通风口则可完全打开,内层幕墙窗开启,以利于自然气流进入建筑内。


        无论通风口处于开启还是关闭状态下,均可阻止雨水进入双层幕墙内部。外循环双层通风幕墙垂直方向上可以一个、几个楼层分为一个通道单元,甚至整个幕墙高度方向为一个通道,水平向也可根据设计分成整个或多个单元。


两种形式的外循环双层幕墙空气通道示意图

(通道设计应由专业厂家根据具体情况深化设计)

        根据需要,外循环式双层幕墙可采用整体单元式、分体单元式、单元/构件组合式、分体构件式、门窗/构件组合式等多种灵活多变的构造形式。外循环式双层幕墙一般更适宜于日照时间长、太阳辐射强的地区。



典型的外循环式双层玻璃幕墙——德国柏林GSW大厦

建筑师:绍尔布鲁赫与赫顿(SAUERBRUCH & HUTTON)

建筑最大的特色在于在双层幕墙间设置了彩色遮阳折板,进而形成了建筑的标志性。


典型的外循环式双层幕墙——荷兰鹿特丹商务部大楼

典型的外循环双层幕墙——北京公馆


北京公馆双层幕墙构造示意图



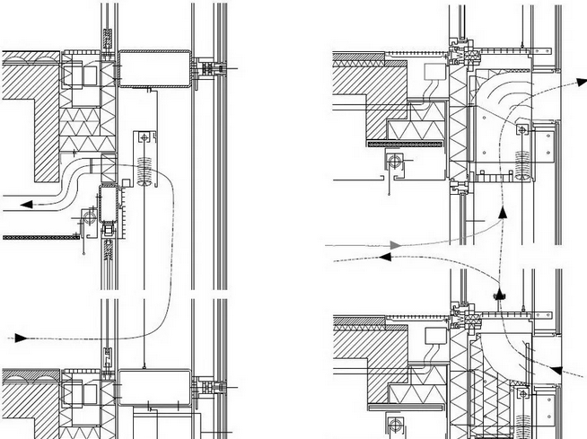
内循环式(机械通风型)双层幕墙系统

        内循环式(机械通风型)双层幕墙由外层幕墙、内层幕墙、内外层之间的空气腔、内外层之间的遮阳装置、进出风装置等组成。



内循环式(机械通风型)双层幕墙构造示意图

(图片来源于沈阳远大铝业工程有限公司)

        这种双层幕墙系统,内外两层幕墙之间形成具有一定厚度(常150~300mm)的空气腔,形成热隔绝层。外层幕墙采用热工性能较好的封闭式中空玻璃幕墙,内层则为单层玻璃幕墙(或可开启的门窗)。内层幕墙底部设置进风口,在顶部设置排风口,通过吊顶内的风管、排风机械排出室内污浊空气并带走进入室内的部分辐射热,形成流动空气层。在通风换气的同时,空腔内的空气与室内排出的空气产生动态热交换,减少室内热量损失,并增强保温/隔热效果。

        通过软件模拟分析,合理设计通风口和气流组织,使系统的通风量满足室内通风换气要求,并使围护系统的动态节能效果达到最佳。这种系统同样可以在适当位置设置自然通风装置或开启窗(外层幕墙),在室内新风不足时,适当弥补,保持室内空气清新,舒适宜人。相比于外循环式双层幕墙,这种系统占用空间尺寸较小。内层幕墙均可开启,便于清洁和维护。

        内循环式双层幕一般更适宜于采暖为主的寒冷地区以及室外空气污染较大的地区。根据需要,封闭内循环式(机械通风型)双层幕墙同样可以采用单元式、构件式及单元/构件组合式等灵活多变的构造形式。



内循环式(机械通风型)双层幕墙——北京中石油大厦

由于空气腔仅有210mm左右,从外观上看不出和普通单层玻璃幕墙的差异。

据称,经软件分析,幕墙传热系数达到0.9W/(m2.K)




典型的内循环式双层幕墙构造示意图


内外循环(混合通风型)双层幕墙系统


        内外循环(混合通风型)双层幕墙系统综合了内循环和外循环两种类型双层幕墙系统的优势,可根据需要采取内循环机械通风或外循环自然通风两种通风方式,二者可灵活切换,相互弥补,充分保证通风效果,保持室内空气清新。两种通风方式的有机结合,最大限度地减少室内外热量直接交换,减少室内热损失,大幅提高保温隔热性能。

        夏季:主要采用自然通风(外循环)方式,通风量不足时,可采用机械通风(内循环)方式加以弥补;

        冬季:将室外自然通风口关闭,以机械通风(内循环)方式为主,通风量不足时,可适当开启外层通风口和内层开启装置,获得适量新风。



混合通风双层幕墙示意图


密闭式免维护双层幕墙系统


        远大公司自主创新的密闭充气式免维护双层幕墙是是一种全新的双层幕墙结构形式,经过了实验验证。它的主要技术特点如下:

        ●  具有传统双层幕墙优良的热工、隔声性能。

        ●  无空腔内结露风险。

        ●  空腔更窄,增加有效使用面积。

        ●  无需维护,降低清洁维护费用。

        ●  与通风器相结合可以实现微通风功能。



密闭充气式免维护双层幕墙系统示意图

(图片来源于沈阳远大铝业工程有限公司)

实际上,这种密闭充气式免维护双层幕墙系统的原理有点类似于室内常见的双玻中间带白叶的玻璃隔断。


开放式双层幕墙系统

        开放式双层幕墙系统外层幕墙常为各种形式构造的单片玻璃幕墙,甚至为玻璃百页幕墙。其空气腔与室外永久连通,更多的是起到屏蔽风沙、屏蔽噪音、保护内层墙面、保护遮阳系统、改善内层墙面的开窗通风、装饰等作用。这种幕墙有时候更适宜于追求表皮形式的建筑、旧建筑改造等。




开放式双层幕墙系统外层幕墙案例



        万事皆有利弊,双层通风幕墙自然也不例外。虽然它能产生较好的节能效果,但也会带来一些负面效果:

  •         热工性能上的一些负面影响。如夏天外循环式双层幕墙一般内层幕墙外表面的温度要高于室外温度(即单层幕墙的外表面温度),在夜晚室外温度低于室内温度时双层幕墙不利散热;冬天进入房间的太阳辐射热比单层幕墙少。“烟囱”效应对防火不利,需设计应对方案。

  •         空气循环产生的的尘土聚集于两层幕墙中间导致清洁工作量的增加,不可使用部分建筑面积的增加,可使用建筑面积损失较常规墙体构造大,造价不可避免地大幅提高等。




        双层幕墙系统是一个系统的设计概念,而非定型的标准化产品,需要根据建筑所处地点及自身需求,由专业厂家结合各种辅助软件进行有针对性地设计,从而使围护结构系统的综合性能达到最优。



——————————————————————————————————


        2022年3月11日-13日,更多幕墙材料企业将带着更多最新研发的产品与技术来WINDOOR门窗幕墙新品展现场,欢迎行业人士前往参观交流。


展览名称:第28届铝门窗幕墙新产品博览会

展览时间:2022. 3. 11-13

展览地点:广州 保利世贸博览馆+南丰国际会展中心

同期展会:阿尔法建筑大会

展览方向:28年专注门窗幕墙新产品发布,展示包含:建筑设计、施工技术、门窗、幕墙、五金、密封产品、设备、智能、防火等新产品。


点击此处,报名参观







关键词:门窗展,幕墙展,门窗幕墙展,广州门窗展
@ 2025 WINDO0R. All rights reserved.
粤ICP备18062804号 | 粤公网安备44010502000918号
[隐私政策] | [EN]
参展相关
参观相关